Trilocale in vendita

Cantù, Via XI Febbraio - Cantù Nord
€ 225.000
3 locali 3 locali
75 Mq 75 Mq
1 bagno 1 bagno

Trilocale in vendita

Cantù, Via XI Febbraio - Cantù Nord

Descrizione annuncio

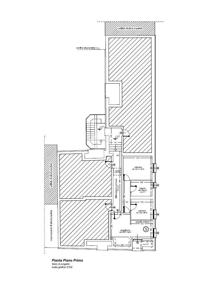
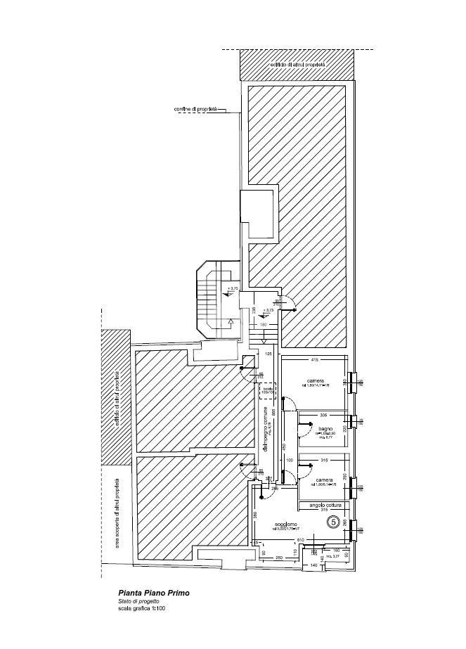
La Ca' del Canturino - App. n. 5

Nel cuore di Cantù, proponiamo un appartamento di nuova realizzazione, all'interno di una piccola palazzina di 6 unità, che unisce comfort e praticità. L'immobile è stato realizzato con tecniche costruttive all'avanguardia e materiali ad alta efficienza energetica, garantendo un eccellente isolamento termico e un significativo risparmio sui consumi

L'appartamento si trova al piano primo ed ultimo di un moderno edificio residenziale. Gli spazi interni sono ben distribuiti e comprendono un'ampia zona giorno con cucina open space e zona living, due camere da letto ed un bagno.

Il terrazzino rappresenta un valore aggiunto, perfetto per momenti di relax all'aperto.

Completa la proprietà un box auto, garantendo comodità e sicurezza per il parcheggio.

L'immobile, in fase di ultimazione, è stato progettato con attenzione ai dettagli e alle esigenze abitative contemporanee, offrendo un'opportunità ideale per chi cerca una soluzione abitativa moderna e funzionale nel centro di Cantù.

La consegna è prevista a marzo 2026.

- Riscaldamento a pavimento

- Predisposizione aria condizionata

- Scelta finiture da ottimo capitolato

- Possibilità di portare in detrazione fiscale il 50% del costo della ristrutturazione (trattandosi di una riqualificazione ex novo)

Le visite verranno pianificate successivamente a un colloquio informativo gratuito, privo di vincoli, che avrà luogo presso i nostri uffici con un consulente finanziario esperto in mediazione creditizia, il quale fornirà tutte le informazioni relative a una possibile richiesta di mutuo.

Offriamo a tutti i nostri clienti una prima consulenza creditizia, con possibilità di avere prodotti adatti alle vostre esigenze.

La nostra agenzia immobiliare si occupa di immobili in vendita e in affitto nel comune di Cantù.

Mostra tutto

Nelle vicinanze

Trasporto pubblico Trasporto pubblico
Via Canturio (Scuola elementare) (Cantù)
Via Canturio (Scuola elementare) (Cantù)
80 m
Viale alla Madonna - Via Da Intimiano (Cantù)
Viale alla Madonna - Via Da Intimiano (Cantù)
250 m
Cantù
Cantù
1,9 Km
Ricariche auto elettriche Ricariche auto elettriche
Unieuro Cantù | EnelX
980 m
Eurospin Cantù | EnelX
1,1 Km
Bennet Cantù | EnelX
1,4 Km
Colisseum Village | EnelX
1,4 Km
Gorla Energia
1,8 Km
Scuole Scuole
Istituto Professionale E.N.A.I.P Lombardia
100 m
Scuole
100 m
Scuole Elementari - Via Casartelli
890 m
I.S.I.S.S. Antonio Sant'Elia
1,5 Km
Liceo scientifico "Fermi"
1,6 Km
Farmacia Farmacia
Farmacia
1,5 Km
Farmacia Comunale 3
2,7 Km
Ospedali Ospedali
Ospedale Sant'Antonio Abate
790 m
Supermercati Supermercati
In's
930 m
MD
1,1 Km
EuroSpin
1,2 Km
Supermercato Lidl
1,3 Km
Aldi
1,3 Km
Negozi Negozi
Gastronomia Trombetta
280 m
Il Fornaio Beretta
400 m
Giorgio Kanten
780 m
Negozi
1,7 Km
Alimentari Valtorta
2,9 Km
Bar Bar
Bar
490 m
Irish Pub
650 m
Pepeverde
720 m
Reverzina
770 m
Il Chiodo Fisso
1,1 Km
Ristoranti Ristoranti
I due re
280 m
La scaletta
340 m
Il Garibaldi
460 m
Giardinet
510 m
Pane & Trita
720 m
Mostra tutto

Caratteristiche

Rif.:
61079866
Piano:
1 di 1 (Piano medio)
Box:
1
Terrazzi:
1
Camere da letto:
2
Arredamento:
Assente
Mostra tutto
Prezzo Prezzo
€ 225.000
Rata mutuo Rata mutuo
€ 1.068 / mese
Spese annue Spese annue
€ 0
Proponi il tuo prezzoProponi il tuo prezzo

Classe Energetica

A4
A4
A4
A4
A4
A4
A4
A4
A4
EP globale non rinnovabile:
10.00 kW h/m² anno
EP globale rinnovabile:
10.00 kW h/m² anno
EP invernale del fabbricato:
EP estiva del fabbricato:
Anno di costruzione:
2025
Riscaldamento:
Centralizzato
Tipo impianto:
A pavimento
Tipo alimentazione:
Pannelli

Ti interessa visionare l'immobile?

Fissa un appuntamento  Fissa un appuntamento

Richiedi informazioni

Clicca su Leggi per aprire l'informativa
* Questi campi sono obbligatori

Calcola il tuo mutuo

Semplice e senza impegno
Anticipo

( % )
Mutuo

( % )

pochi semplici passi

inserisci i tuoi dati
Questionario completato
Grazie per aver richiesto un appuntamento senza impegno con un nostro Consulente del Credito e Assicurativo.

Hai inserito correttamente tutti i dati necessari e a breve riceverai una e-mail con un link da convalidare per inviare i tuoi dati.
Affiliato
Studio Cantu' 24 Srl
P.zza Piave, 2 22063 Cantù (CO)

Il nostro staff


  • Stefano Colombo
    Affiliato

  • Gloria Lacquaniti
    Responsabile

  • Giorgia Radice
    Coordinatrice

  • Elisa Arosio
    Collaboratrice
P.zza Piave, 2 22063 Cantù (CO)
Zona: Cantù Sud
Mostra su mappa
Orari: Da Lunedì a Venerdì 9.30 - 12.30 / 14.30 - 19.30 Sabato 9.30 - 12.30 / solo su appuntamento
Affiliato
Studio Cantu' 24 Srl
P.zza Piave, 2 22063 Cantù (CO)

2026 Tecnocasa Franchising S.p.A. - P. IVA 08365160152 - Via Monte Bianco 60/A 20089 Rozzano (MI). Ogni agenzia ha un proprio titolare ed è autonoma. Privacy policy | Policy utilizzo | Cookie policy